RELO Makelaars

Omschrijving

Per 8 september 2024 beschikbaar dit prachtige penthouse in het centrum van Zaandam. Een fraaie penthouse met hoge plafonds, een smaakvolle en hoogwaardige afwerking en een prachtige badkamer! Verder is er een heerlijk ruim dakterras (ca.24 m2! ) welke ligt op het zuidwesten, dus u kunt hier de hele dag genieten van de heerlijke zon. Het appartement bevindt zich in…

Per 8 september 2024 beschikbaar dit prachtige penthouse in het centrum van Zaandam.

Een fraaie penthouse met hoge plafonds, een smaakvolle en hoogwaardige afwerking en een prachtige badkamer! Verder is er een heerlijk ruim dakterras (ca.24 m2! ) welke ligt op het zuidwesten, dus u kunt hier de hele dag genieten van de heerlijke zon.

Het appartement bevindt zich in het voormalige Johannes ziekenhuis, welke in 2001 is omgebouwd tot appartementencomplex.

Locatie
Het appartement is gelegen op een fantastische locatie in het centrum van Zaandam en op loopafstand van vele voorzieningen zoals winkel en horecagelegenheden. Nabij de uitvalswegen richting de A7, A8 en A10. Op slecht 5 minuten fietsafstand van het station waarna u met de trein binnen 12 minuten naar Amsterdam reist.

  • Gemeubileerd
  • Ideaal voor expats and young professionals
  • keuken apparatuur en wasmachine aanwezig

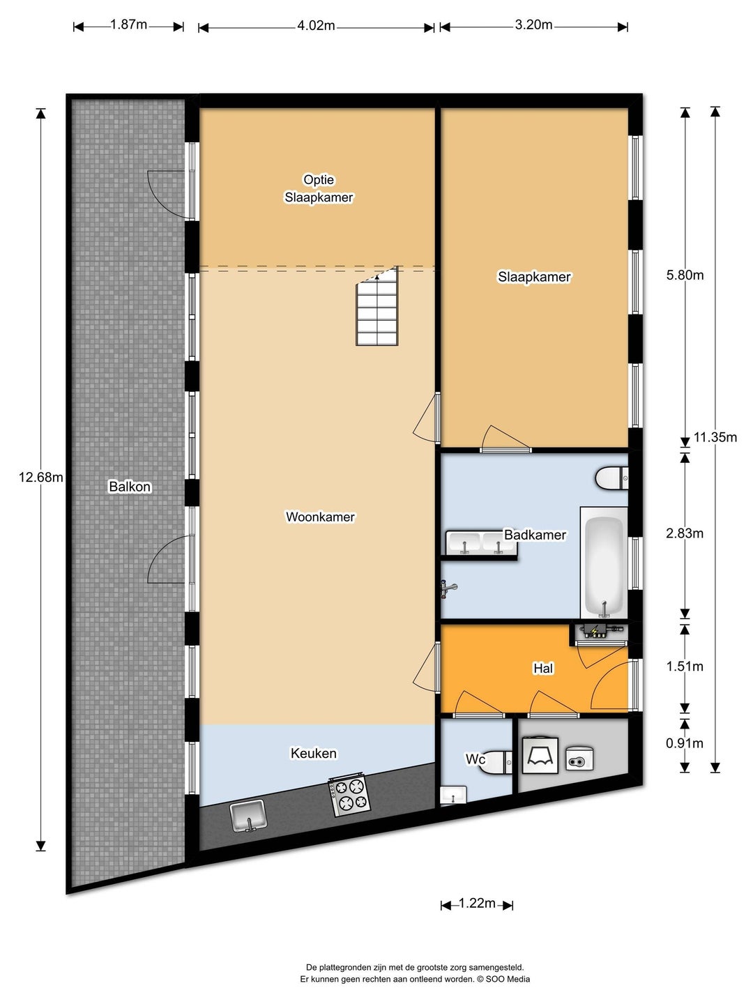
    Indeling
    Vanuit de centrale entree bereikt u met de lift de derde verdieping waar het appartement zich bevindt.

Entree: via de hal, stapt u in de ruime, zonnige woonkamer met open keuken binnen. De keuken is voorzien van diverse inbouwapparatuur. De keuken is vorig jaar gerenoveerd.
De hoge plafonds zorgen in het gehele apartment voor een extra ruimtelijk gevoel.

Er zijn 2 slaapkamers.
De tevens vorig jaar vernieuwde badkamer is en suite en via de slaapkamer te bereiken.
De badkamer beschikt over een inloopdouche, een heerlijk ligbad, his en hers wastafels en een toilet.
Daarnaast is er nog een apart toilet in de hal.

Vanuit de woonkamer, stapt u op het heerlijke dakterras van ca.24 m2. Hier kunt u genieten van een prachtig uitzicht over de stad!
Beneden heeft u een eigen berging en is er een gemeenschappelijke fietsenberging op de begane grond.
Aan de voorzijde van het gebouw heeft u een eigen parkeerplaats.

Balkon
Vanuit de woonkamer, stapt u op het heerlijke dakterras van ca.24 m2. Hier kunt u genieten van een prachtig uitzicht over de stad!

Kenmerken

  • Adres

    Kapelaan Gerrit Grootstraat, Zaandam

  • Wijk

    Rosmolenbuurt

  • Soort woning

    Appartement

  • Beschikbaar per

    08-09-2024

  • Bouwjaar

    2001

  • Woonoppervlakte

    Circa 90 m²

  • Balkon

    1

  • Kamers

    3

  • Slaapkamers

    2

  • Badkamers

    1

  • Ligging

    In centrum

  • Borgsom

    € 3800

  • Servicekosten

    € 65.00

  • Parkeergelegenheid

    Op eigen terrein

  • Huurperiode

    Tijdelijk

  • Energielabel

    E

Voorzieningen

  • Huisdieren: In overleg

  • Gemeubileerd

  • Balkon: 1

  • Roken toegestaan: Nee

9.5

Klantbeoordelingen

Waarom kiest u voor Relo Makelaars? Persoonlijke, transparante, no-nonsense en flexibele samenwerking.

Lees alle referenties
Relo Makelaars

Jp Thur-1505399820

Ik raad het iedereen aan.

10

14-09-2017

10 kwaliteit

10 marktkennis

10 snelheid van reageren

Alex Śramski-1612972269

Quality is on the top level !

10

10-02-2021

10 kwaliteit

10 marktkennis

10 snelheid van reageren

Aukje Catharine ter Velde-1506263160

Ik ben ontzettend tevreden en zal RELO Wonen zeker aanraden.

10

24-09-2017

10 kwaliteit

10 marktkennis

10 snelheid van reageren

Beaumont -1625491389

Wilma heeft nog geweldig en snel en heel erg vriendelijke geholpen.

9

05-07-2021

10 kwaliteit

10 marktkennis

9 snelheid van reageren

Ben Botha-1504622400

Ons gezin van 5 is extreem gelukkig en ik kon geen betere agent bedenken om mee om te gaan als ik ooit een nieuw huis nodig had.

10

05-09-2017

10 kwaliteit

10 marktkennis

10 snelheid van reageren

Bob Visser-1616444227

Professioneel, efficiënt, betrouwbaar, deskundig, correct.

10

22-03-2021

9 kwaliteit

9 marktkennis

10 snelheid van reageren

Brenda J. Lillie-1627646878

Je nam wat een ontmoedigende taak zou kunnen zijn en maakte het gemakkelijk! Bedankt!

10

30-07-2021

10 kwaliteit

10 marktkennis

10 snelheid van reageren

Bruijntjes-1604395834

Snel, behulpzaam en vertrouwen!

10

03-11-2020

10 kwaliteit

10 marktkennis

10 snelheid van reageren

Donker-1657216456

Betrouwbaar

10

07-07-2022

10 kwaliteit

10 marktkennis

10 snelheid van reageren

Kennismaken?

Onze bemiddelaars zijn gespecialiseerd, vakkundig en klantgericht op bemiddeling tussen huurders en verhuurders in de particuliere woningmarkt.

Meer over ons
RELO Makelaars