RELO Makelaars

Omschrijving

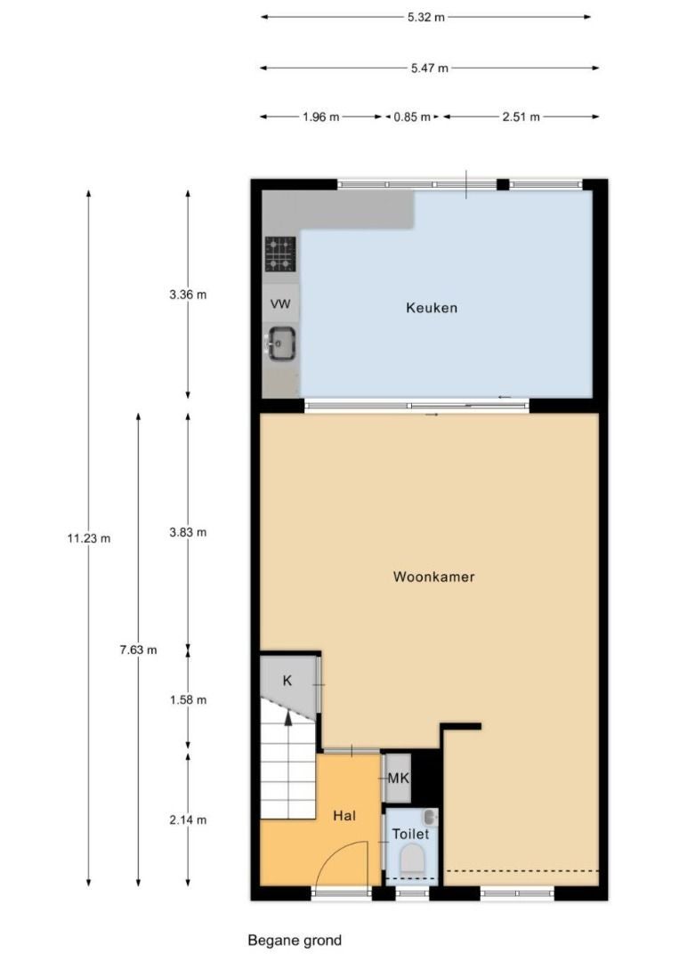
Per 6 februari, voor 18 maanden beschikbaar deze ruime 5 kamer woning in Lelystad. Indeling:Begane grondEntree, hal met toegang tot het toilet, trapopgang en de woonkamer. De woonkamer is ruim en licht en aan de achterzijde is een heerlijke lichte grote woonkeuken in de aanbouw! Toegang tot de tuin.De keuken voorzien van inbouwapparatuur zoals een…

Per 6 februari, voor 18 maanden beschikbaar deze ruime 5 kamer woning in Lelystad.

Indeling:
Begane grond
Entree, hal met toegang tot het toilet, trapopgang en de woonkamer. De woonkamer is ruim en licht en aan de achterzijde is een heerlijke lichte grote woonkeuken in de aanbouw! Toegang tot de tuin.
De keuken voorzien van inbouwapparatuur zoals een 5-pitsgaskookplaat, afzuigkap, vaatwasser, combimagnetron en losse koelkast.

Eerste verdieping
De eerste verdieping beschikt over drie slaapkamers en de badkamer.

De badkamer is eenvoudig. De inloopdouche, zwevend toilet, wastafel en designradiator.

Tweede verdieping
Via een vaste trap kom je op de tweede verdieping. Op de voorzolder is de toegang tot de berging waar de cv ketel hangt en de wasmachine aansluiting zit. Zowel de overloop als de berging zijn voorzien van ramen. De vierde slaapkamer op zolder is ruim en voorzien van ramen aan beide zijden. Deze verdieping is geheel voorzien van een laminaat vloer.

Bijzonderheden:

  • huurovereenkomst op basis van Diplomaten clausule
  • Beschikbaar voor maximaal 18 maanden
  • 1 maand borgsom
  • geen woningdelers

Kenmerken

  • Adres

    Noordzeestraat, Lelystad

  • Wijk

    Zeeenbuurt

  • Soort woning

    Woonhuis

  • Bouwjaar

    1983

  • Woonoppervlakte

    Circa 123 m²

  • Kamers

    5

  • Slaapkamers

    4

  • Badkamers

    1

  • Badkamer faciliteiten

    Inloopdouche, Hangend toilet, Wastafel

  • Buitenruimte

    Achtertuin

  • Ligging

    In woonwijk

  • Inkomenseis

    € 6450

  • Borgsom

    € 2150

  • Parkeergelegenheid

    Openbaar parkeren

  • Huurperiode

    Tijdelijk

  • Energielabel

    B

Voorzieningen

  • Huisdieren: Nee

  • Gestoffeerd

  • Roken toegestaan: Nee

  • Inloopdouche, Hangend toilet, Wastafel

9.5

Klantbeoordelingen

Waarom kiest u voor Relo Makelaars? Persoonlijke, transparante, no-nonsense en flexibele samenwerking.

Lees alle referenties
Relo Makelaars

Jp Thur-1505399820

Ik raad het iedereen aan.

10

14-09-2017

10 kwaliteit

10 marktkennis

10 snelheid van reageren

Alex Śramski-1612972269

Quality is on the top level !

10

10-02-2021

10 kwaliteit

10 marktkennis

10 snelheid van reageren

Aukje Catharine ter Velde-1506263160

Ik ben ontzettend tevreden en zal RELO Wonen zeker aanraden.

10

24-09-2017

10 kwaliteit

10 marktkennis

10 snelheid van reageren

Beaumont -1625491389

Wilma heeft nog geweldig en snel en heel erg vriendelijke geholpen.

9

05-07-2021

10 kwaliteit

10 marktkennis

9 snelheid van reageren

Ben Botha-1504622400

Ons gezin van 5 is extreem gelukkig en ik kon geen betere agent bedenken om mee om te gaan als ik ooit een nieuw huis nodig had.

10

05-09-2017

10 kwaliteit

10 marktkennis

10 snelheid van reageren

Bob Visser-1616444227

Professioneel, efficiënt, betrouwbaar, deskundig, correct.

10

22-03-2021

9 kwaliteit

9 marktkennis

10 snelheid van reageren

Brenda J. Lillie-1627646878

Je nam wat een ontmoedigende taak zou kunnen zijn en maakte het gemakkelijk! Bedankt!

10

30-07-2021

10 kwaliteit

10 marktkennis

10 snelheid van reageren

Bruijntjes-1604395834

Snel, behulpzaam en vertrouwen!

10

03-11-2020

10 kwaliteit

10 marktkennis

10 snelheid van reageren

Donker-1657216456

Betrouwbaar

10

07-07-2022

10 kwaliteit

10 marktkennis

10 snelheid van reageren

Kennismaken?

Onze bemiddelaars zijn gespecialiseerd, vakkundig en klantgericht op bemiddeling tussen huurders en verhuurders in de particuliere woningmarkt.

Meer over ons
RELO Makelaars